REAL ESTATE DESCRIPTION

  • LocationNew York
  • Province
  • Price €. 6.600.000
  • PropertyREsidential
  • TypeVendita
  • Dimensions Mq
Descrizione

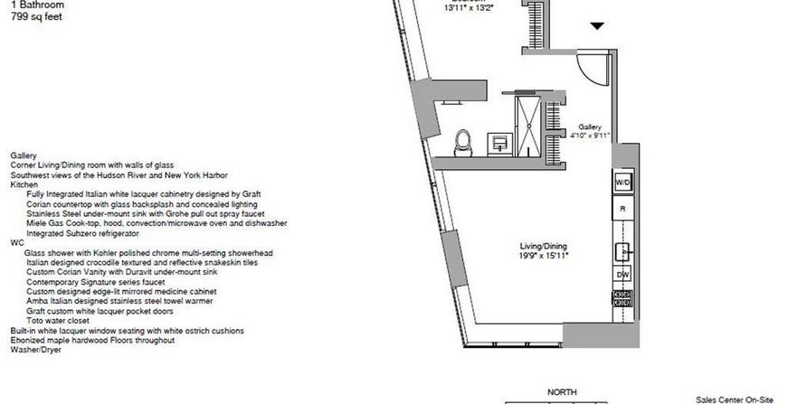
RARE OPPORTUNITY TO COMBINE THREE UNIT INTO A ONE SPRAWLING APARTMENTINCLUDED IN THE SALE IS A 200, 000 $ CONSTRUCTION CREDITBring your architect. Views of 9/11 Memorial Park, Statue of Liberty, the river, city of Manhattan and beyond from every window of your residence. W Hotel signature WHATEVER/WHENEVER ® service and hotel amenities are available 24/7/365. David Rockwell designed Lobby. Listing Courtesy of The Nassimi Group

OTHER CHARACTERISTICS

  • not present

MAP

REQUEST INFORMATION ABOUT RESIDENTIAL (123 WASHINGTON STREET)

If you are interested in this property, please submit your details and you will shortly be contacted by our Area Agent.
(*) All fields are required

I have read and accept the Privacy Policy and I authorize the treatment of my personal data.